SPRZEDAŻ ZAKOŃCZONA

Nowogrodzka 44

Kamienica Frekantela do użytku została oddana pod koniec 1904 roku i jest wpisana do rejestru zabytków. Jako jedna z nielicznych przetrwała II wojnę światową bez żadnych zniszczeń.

Piwnice budynku tworzą połączenia z kanałami i tunelami w całym mieście, które w czasie powstania Warszawskiego były wykorzystywane przez Powstańców i AK.

Ulica Nowogrodzka położona na Śródmieściu, to jedna z najbardziej prestiżowych lokalizacji stolicy, w bezpośrednim sąsiedztwie Traktu Królewskiego, placu Trzech Krzyży, oraz parków na Skarpie.

Jednolity charakter zabudowy, bliskość kawiarni, restauracji oraz świetny punkt komunikacyjny. Okolica zapewnia łatwy dostęp do większości usług i pozwala cieszyć się tętniącym życiem miasta.

Lokale

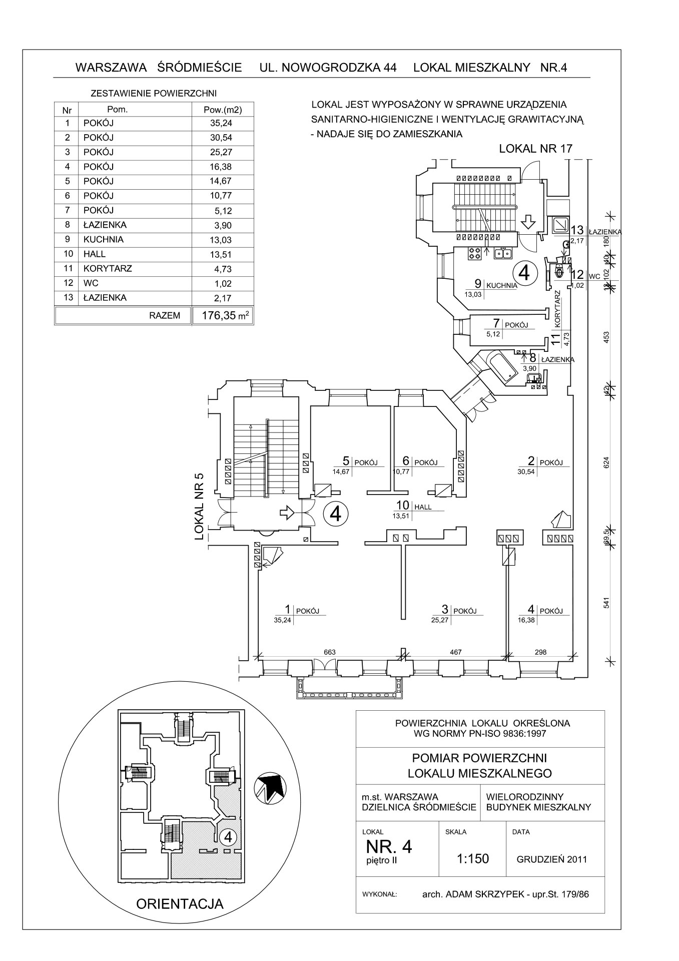
Lokal mieszkalny nr 4

Powierzchnia 176,35 m2

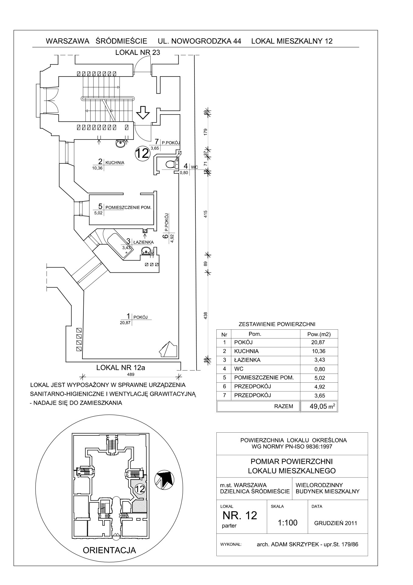
Lokal mieszkalny nr 12

Powierzchnia 49,05 m2

Lokal użytkowy nr 12A

Powierzchnia 59,80 m2

Lokal mieszkalny nr 15

Powierzchnia 75,48 m2

Lokal mieszkalny nr 17

Powierzchnia 75,87 m2